近日,北京持续扩容优质教育资源,多区新建校开工、竣工,还有优质教育集团扩容的好消息,快来一探究竟!
北京市第一六一中学广安分校
建设项目完成竣工验收
10月30日,北京市第一六一中学广安分校建设项目完成竣工验收。

北京市第一六一中学广安分校是一所新建公办初中,隶属于北京市第一六一中学教育集团。学校地处西城区西便门内大街85号,初中24个班编制。学校依托北京市第一六一中学教育集团,充分整合教育资源,让优质的教学理念、师资力量在各校区之间流动共享。
北京市陈经纶中学教育集团
再添三成员
10月31日,北京市陈经纶中学教育集团成员校挂牌仪式分别在青苗国际双语学校、北京市实验外国语学校、北京市忠德学校顺利举行。随着新校牌正式启用,标志着三校融入陈经纶中学教育集团,携手推动优质教育资源共享、共促教育高质量发展的新征程加速开启。

青苗国际双语学校新校牌揭幕

北京市实验外国语学校新校牌揭幕

北京市忠德学校新校牌揭幕
未来,三校将以加入陈经纶中学教育集团为契机,充分依托集团优质教育资源,在课程体系完善、发展平台搭建、教育教学改革、教师专业成长等方面深化探索,最终为学生提供更优质、更多元的教育服务,助力学生全面发展。
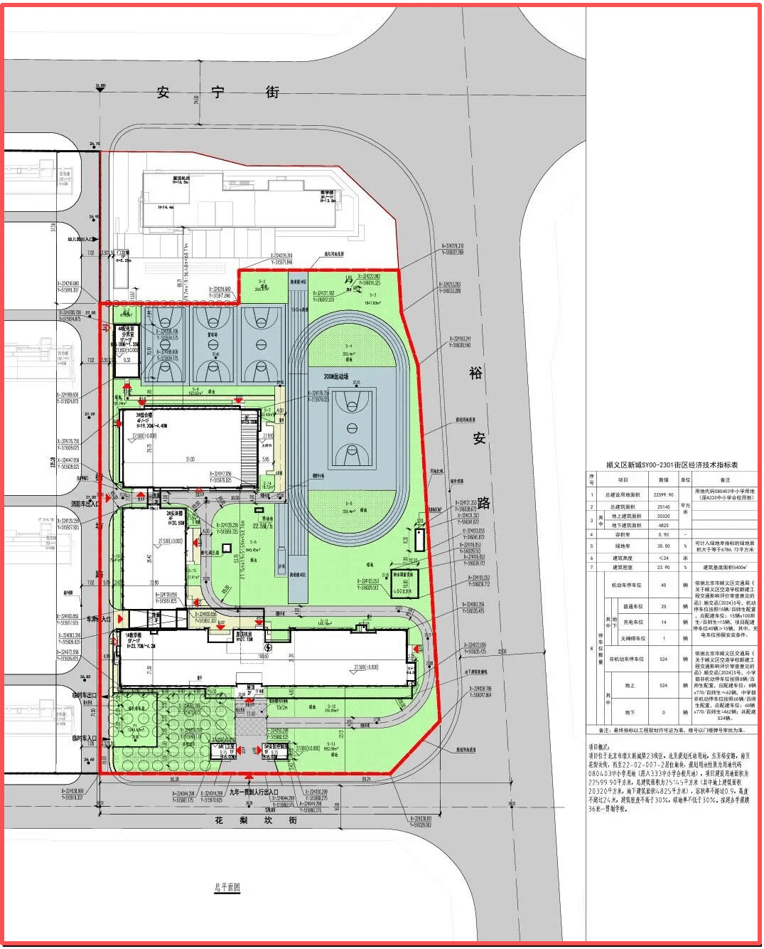
顺义空港学校新建工程
近日,空港学校新建工程已获市发改委立项批复,并取得“多规合一”初审意见选址意见书。据悉,该校建设地点位于顺义新城空港街道23街区,项目新建36个班、学位1440个,为九年一贯制学校,预计2027年9月投入使用。项目陆续启用后,将更好地填补区域学位缺口,为适龄学生入学提供有力保障。


该校建设地点位于顺义新城空港街道23街区,北至规划托幼用地,东至裕安路,南至花梨坎街(暂定名),西至22-02-007-2居住地块。项目建设用地面积22599.9平方米,拟建设36个班九年一贯制学校,其中小学18个班、初中18个班,可提供学位1440个。据了解,项目包含教学主楼、室外看台及体育用房等,同时还将建设风雨操场、学生阅览室及各类专用教学用房,满足师生教学、活动需求。
北师大附中经开学校
项目方案反馈意见公示
北京市规划和自然资源委员会经济技术开发区分局近日对北京师范大学附属中学经开学校项目方案进行了现场和网上公示,据建设单位最新的发布的公示信息显示,北师大附中经开学校将配套建设50m标准泳道的游泳馆,位于体育馆地下一层。


北师大附中经开学校是一所由北京师范大学与北京经济技术开发区合作共建的十二年一贯制公办学校。校区整体规划采用了“学习谷”的设计理念,主要功能区设计为一个大的教育综合体,素质教学区居于校园中轴,集合了八大学科中心,及百年礼堂、图书馆、国学讲堂、体育馆等大型场馆,形成具有附中特色的“学习谷”,小学部和中学部分处学习谷的两侧,可最大程度共享学科教学资源,同时又保证各自的独立性,实现了多层次、多样态的复合化空间场所,以及随手可得的学习空间与体育活动空间,致力于打造一个4.0的AI级智慧绿色校园。
编辑 | 京教君
内容来源 |现代教育报